Single Stair Housing Studies
_Developing a modular prototype for single-stair housing* in the United States
Primary Projects + RUKA Design
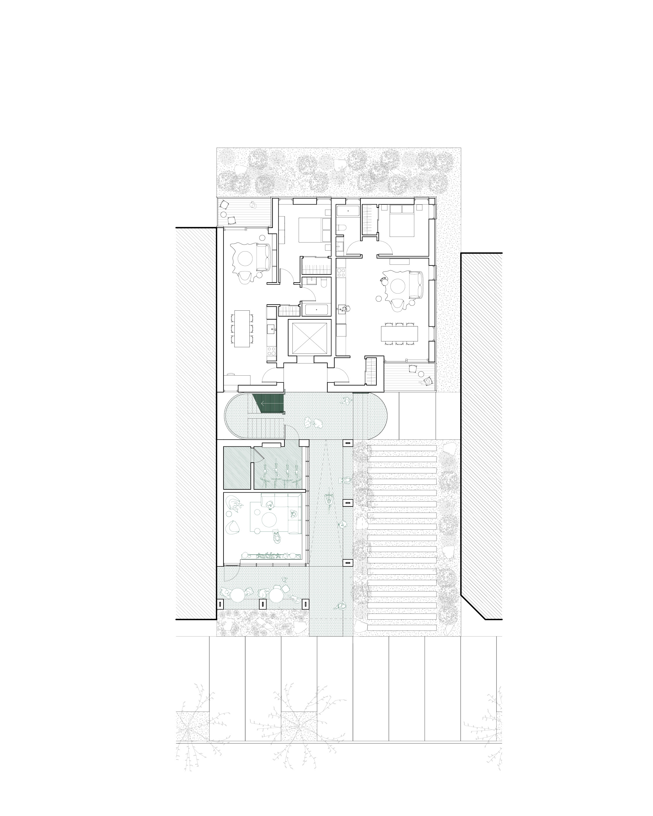
While designing Split Switchback Housing, we tested a few variants to see if it could serve as a prototypical solution for Denver. In 2025, we used the National Single Stair Housing Competition as an opportunity to test the approach on three sites with wildly different dimensions and conditions.
The Denver project had both street & alley access and was large enough to allow for setbacks on all sides. Across the new sites we tested: zero-lot-line conditions, single-sided fire truck access, on-site fire lanes, and alternative unit layouts.
* Currently, most US housing over three stories requires two means of egress. This generates hotel-style housing, where units are entered from long, dark hallways. This model has many problems. Allowing windows only on one wall leads to inefficient unit layouts that are ill-suited for families, difficult to ventilate naturally, and more. The excess circulation—an extra set of stairs and a long hall—requires large rectangular plots of land, which are increasingly rare and costly in urban settings. Because these codes predate the invention of modern technologies like fire sprinklers, many municipalities are revisiting them to encourage the development of infill sites and lower housing costs.
The Denver project had both street & alley access and was large enough to allow for setbacks on all sides. Across the new sites we tested: zero-lot-line conditions, single-sided fire truck access, on-site fire lanes, and alternative unit layouts.
* Currently, most US housing over three stories requires two means of egress. This generates hotel-style housing, where units are entered from long, dark hallways. This model has many problems. Allowing windows only on one wall leads to inefficient unit layouts that are ill-suited for families, difficult to ventilate naturally, and more. The excess circulation—an extra set of stairs and a long hall—requires large rectangular plots of land, which are increasingly rare and costly in urban settings. Because these codes predate the invention of modern technologies like fire sprinklers, many municipalities are revisiting them to encourage the development of infill sites and lower housing costs.
Logic & Constraints
Street Presence
Sun shading balconies in Austin
Corner balconies and fire lane as lawn in Portland

Alternating balconies in SF
Plans
One Stair, Several Ways
An inset stair in Austin

The peekaboo stair abuts balconies in Portland

Stair as succulent lightwell in SF
Rooftop Vibes
Each roof has space for gardening....
shared meals, and....
laundryBonus Content
Sponsor
National Single Stair Design CompetitionLocation
Austin, TXPortland, OR
San Francisco, CA
Awards
National Single Stair Design Competition, Third Place (Austin)General Stats
- 6-stories
- Amenities: Covered Outdoor Cafe Seating, Community Room, Bike Room, Communal Living Room, Shared Laundry, Rooftop Deck, Social Stair
Austin Stats
-
20 units:
6 one-beds
14 two-beds - Lot Size: 6,075 sf (0.14 acres)
- 144 dwelling units per acre
- 244 beds per acre
Portland Stats
- 16 units:
12 one-beds
4 two-beds - Lot Size: 5,000 sf (0.11 acres)
- 139 dwelling units per acre
- 174 beds per acre
San Francisco Stats
- 14 units:
8 one-beds
6 two-beds -
Lot Size: 2,750 sf (0.06 acres)
- 222 dwelling units per acre
- 317 beds per acre
Services
- Architectural Design
- Zoning Analysis
- Interior Design